Neu in Kirchardt: Hochwertige Maisonettewohnung mit Balkon und Tiefgaragenplatz
Eckdaten
- Art Maisonettewohnung
- Lage 74912 Kirchardt
- Kaufpreis 249.000,00 €
- Hausgeld 431,00 €
- Wohnfläche ca. 104 m²
- Zimmer 4.5
- Baujahr 1993
- Etagenzahl 3
- Etage 3
- Heizungsart Zentralheizung
- Gäste-WC ja
- Stellplatztyp Tiefgarage
- Stellplatzanzahl 1
- Vermietet nein
- Bezugstermin Nach Vereinbarung
- Bodenbelag Laminat Fliesen Teppichboden
- Ausstattung des Bades Fenster Dusche Badewanne
- Zustand Gepflegt
- Immobilien-ID 9849
- Provision 3,57% inkl. 19% gesetzl. MwSt. inkl. MwSt.
Immobilie
Sie wünschen sich eine gehoben ausgestattete, sanierte und vergleichsweise junge Maisonettewohnung, die sich über 2 Wohnebenen erstreckt und Sie als Eigennutzer direkt ohne Kündigung bestehender Mietverhältnisse beziehen können? Zudem benötigen Sie mindestens 3 Schlaf-/Kinderzimmer für sich und Ihre Familie?
Dann entspricht diese modern-geschnittene, hochwertige 4,5-Zimmer-Maisonettewohnung mit Tiefgaragenplatz großzügigem Balkon in Kirchardt genau Ihren überdurchschnittlichen Anforderungen. Unser neues Immobilienangebot aus dem vergleichsweise jungen Errichtungsjahr 1993, das sich in zentraler Lage von Kirchardt befindet, ist eingebettet in ein gepflegtes Mehrfamilienhaus mit insgesamt 9 Wohnungen.
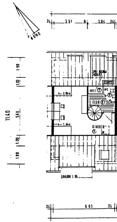
Die insgesamt rund 104 m² qualitativ ausgestattete Wohnfläche erstreckt sich mit 4,5 Zimmern (davon 3 vollwertige Schlaf-/Kinderzimmer), Badezimmer, Toilette, 2 Abstellräume, Küche und Dielen sowie Balkon in idealtypischer Südwestlage über 2 Wohnebenen im 1ten Ober- und Dachgeschoss des vollunterkellerten Wohnhauses. Hierdurch lassen sich praktischerweise Ihre neuen Wohn- und Schlafbereiche räumlich voneinander entkoppeln, sofern Sie innerfamiliär z. B. zu unterschiedlichen Zeiten schlafen und arbeiten oder Ihr ältestes Kind seinen eigenen Rückzugsort schaffen möchte. Die Hauptwohnebene empfängt Sie mit rund 76 m² Wohnfläche. Der strukturgebende Flur bietet Ihnen – neben ausreichend Platz für Ihre Garderobe – Zugang zu Ihren 2 Schlaf-/Kinderzimmern, einem praktischen Abstellraum, Ihrer neuen Küche und modern sanierten Badezimmer mit Badewanne und Dusche sowie Waschmaschinenanschluss, so dass Ihnen lästige Kellergänge erspart bleiben. Highlight Ihrer neuen Wohnung ist der – bedingt durch die bodentiefen Fensterelemente – tageslichtdurchflutete Wohn- und Essbereich als zentralen Ankerpunkt Ihrer neuen Wohnung, der Ihnen nahtlosen Zugang zu Ihrem Sonnenbalkon mit Markise ermöglicht.
Über die elegante Spindeltreppe gelangen Sie zu Ihrer zweiten Wohnebene ins Dachgeschoss. Hier wird Ihr Platzangebot mit zusätzlichen ca. 28 m² Wohnfläche komplettiert, die ein Schlaf-/Kinderzimmer, eine separate Toilette sowie einen zusätzlichen kleineren Raum umfasst, der entweder als Home Office, Arbeitszimmer oder weiteren Abstellraum genutzt werden könnte. Der wohnungszugehörige Keller ermöglicht praktische Stau- und Nutzfläche im Untergeschoss des Mehrfamilienhauses. Hier befindet sich auch die Gasheizung inklusive Warmwasseraufbereitung, die das gesamte Wohnhaus zentral beheizt. Zur komfortablen und sicheren Unterbringung Ihres Fuhrparks steht Ihnen ein wertvoller Tiefgaragenstellplatz zur Verfügung.
Zusammengefasst betrachtet befindet sich die verkaufsrelevante, vergleichsweise junge Wohnung, die umgehend nach zeitlicher Absprache ohne Übernahme bestehender Mietverhältnisse zur Eigennutzung oder Vermietung übergeben werden kann, nach wie vor in einem sehr gepflegten und sanierten Zustand und eignet sich ideal für (junge) Paare und Familien.
Lage
Der Immobilienstandort der Maisonettewohnung überzeugt durch die zentrale und dennoch ruhige Lage in einem familienfreundlichen Wohnviertel in Kirchardt – eine Gemeinde mit ca. 5.800 Einwohnern, die ideale Voraussetzungen für Paare, junge Familien und Berufspendler bietet, die Wert auf Lebensqualität und beste Infrastruktur legen. Die unmittelbare Umgebung setzt sich aus einer angenehmen Mischung von gepflegten Wohnhäusern, modernen Einrichtungen und liebevoll geführten Geschäften zusammen. Das Viertel ist von einem ruhigen Wohnklima geprägt und verspricht eine hohe Lebensqualität mit guter Balance zwischen entspannter Atmosphäre und praktischer Infrastruktur.
Durch die günstige Lage sind zahlreiche Einkaufsmöglichkeiten (z. B. Supermärkte, Bäckereien, eine Drogerie (Rossmann) und lokale Hofläden) schnell erreichbar und sorgen für einen hohen Alltagskomfort. Auch beliebte Restaurants wie der Goldene Hirsch, das Gasthaus Ratskeller oder die Pizzeria Bella Italia befinden sich in Fußnähe und bieten vielseitige kulinarische Angebote. Für Familien ist die Nähe zu mehreren Kindergärten wie der Kindergarten Birkenbach und zur Birkenbachgrundschule besonders attraktiv, ebenso wie die schnelle Erreichbarkeit von Freizeitangeboten und grünen Erholungsflächen, die zu Spaziergängen und Aktivitäten einladen. Die Anbindung an das Verkehrsnetz, mit kurzen Wegen zur Autobahn und optimalen Verbindungen in die benachbarten Städte Heilbronn und Sinsheim, ist ideal für Berufspendler und sorgt für Mobilität im Alltag.
Zusammengefasst vereint der Immobilienstandort eine zentrale Lage, umfangreiche Infrastruktur und familienfreundliche Umgebung. Die Nähe zu Geschäften, Bildungseinrichtungen und Freizeitmöglichkeiten macht diese Maisonettewohnung besonders attraktiv. Ergänzt wird dies durch die starke wirtschaftliche Entwicklung der Region und eine hohe Wohnqualität für generationsübergreifendes Wohnen.
Ausstattung
– Attraktive Maisonettewohnung auf 2 Wohnebenen mit 3 Schlafzimmern und Balkon mit Markise
– Umfassende Sanierungen aus 2018, u. a. Badezimmer inklusive Sanitäreinrichtung, Dachfenster, Bodenbeläge, Küche
– Einbauküche optional zu übernehmen
– Tageslichtheller Wohn- und Essbereich
– Tiefgaragenstellplatz direkt am Ausgang für kurze Wege im vollen Angebotspreis inbegriffen
– Gaszentralheizung im Untergeschoss
– 2fachverglaste Kunststofffenster mit Rollläden
– Badezimmer mit Badewanne und Dusche und Waschmaschinenanschluss
– Gesonderte Toilette im Dachgeschoss
– Wohnung Nr. 7 (Miteigentumsanteile: 79,18/1.000stel)
– Wohnungszugehöriger Keller Nr. 7 im Untergeschoss
– Tiefgaragenplatz Nr. 24
– Hausgeld: ca. 431 €/M (davon Instandhaltungsrücklage ca. 80 €/M)
– Ideeller, wohnungseigener Anteil an der Instandhaltungsrücklage in Höhe von ca. 4.500 € (per 30.09.2024)
– Eigentümergemeinschaft besteht aus 17 Parteien
Sonstiges
Gerne vereinbaren wir einen unverbindlichen Besichtigungstermin. Bitte fragen Sie uns dazu schriftlich über die E-Mail-Funktion im Portal an. Nach Prüfung und Bonitätsnachweis erhalten Sie gerne das entsprechend detaillierte, bebilderte Exposé.
Der Energieausweis liegt zur Besichtigung vor.
Gerne unterstützen wir Sie auch als vollwertiger Partner für Ihre Immobilienfinanzierung. Die im Exposé gemachten Angaben beruhen auf Informationen des Verkäufers, für deren Richtigkeit die Perfect Immo GmbH keinerlei Haftung übernimmt. Irrtümer und Zwischenverkauf vorbehalten. Gemäß § 17 MaklerG informieren wir Sie, dass wir für den Verkäufer im Rahmen eines Alleinauftrags tätig sind und daher eine Doppeltätigkeit für Verkäufer und Käufer ausüben. Wir weisen darauf hin, dass wir im Erfolgsfall von beiden Parteien eine Provision erhalten.
Energieausweisangaben
- Enerigeausweistyp Verbrauchsausweis
- Energiekennwert 104 KWh(m²*a)
- Energieeffizienzklasse D
- Energieausweis erstellt am 26.03.2018
- Energieausweis gültig bis 26.03.2028
- Heizungsart Zentralheizung
- Befeuerung / Energieträger Gas
Rechtliches
vom notariellen Kaufpreis
Herzlichen Dank für Ihre Anfrage.
Wir werden diese so schnell wie möglich bearbeiten.


